Objektart
Adresse
Objektdaten
Informationen
Ausstattung
Details
Mehrfamilienhaus mit nur 3 Wohneinheiten in einem schönem Wohngebiet gelegen. Dinge des täglichen Bedarfs und Grünflächen wie den Schlosspark aber auch den Sportplatz erreichen Sie fußläufig!
Ob Erdgeschoss , Obergeschoss oder Dachgeschoss, hier ist für jeden Geschmack die passende Wohnung auf einer eigenen Etage mit dabei.
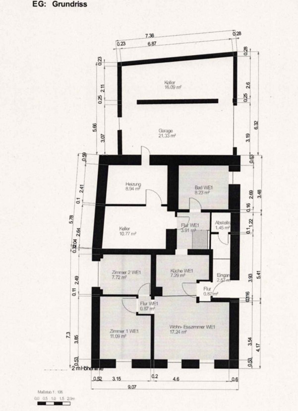
Wohnung 1 EG:
Im Erdgeschoss befindet sich auf 56,35m² die 3-Zimmerwohnung mit Einbauküche und einem Tageslichtbad mit Badewanne. Ein kleiner geschickter Abstellraum ist vorhanden.
Wohnung 2 OG:
Auf knapp 90m² ist diese 4-Zimmerwohnung im Obergeschoss ebenfalls mit einer Einbauküche ausgestattet. Das Tageslichtbad verfügt über eine Dusche. Für Schatten auf dem großen Balkon sorgt eine Überdachung. Hier befindet sich auch ein kleiner Abstellraum für Ihre Utensilien.
Wohnung 3 DG:
Im 68,14m² großem Dachgeschoss mit offenem Wohn-/Essbereich befindet sich die 3,5 Zimmerwohnung mit einer Einbauküche. Das Tageslichtbad ist mit einer Dusche ausgestattet. Eine gut 4m² große, separate Speisekammer gehört ebenfalls zu dieser Wohneinheit.
Ideal für Kapitalanleger:
2 Wohnungen sind derzeit vermietet.
Die Wohnung im OG kann nach dem Verkauf vermietet werden.
Die Mieteinnahmen belaufen sich aktuell auf 12.000 EUR/Jahr.
Mieterhöhungsrahmen nicht ausgeschöpft.
- 3 Wohnungen
- OG Wohnung mit Kamin
- Einbauküchen
- modernisiert
- Garage
- Stellplatz
- separater Keller
- 2009 Außendämmung 12 cm
- 2014 saniert (Heizung, Wasser, Strom)
- 2019 Hof neu gepflastert
- 2023 Garage mit 3 Keller angebaut
- Auf der Garage große Dachterrasse mit Abstellraum Zugang Wohnung OG
- 2024 Außen komplett neu gestrichen
Das Mehrfamilienhaus steht im Bad Rappenauer Ortsteil Bonfeld.
Bonfeld gilt als ruhig und ist daher ideal für Familien geeignet, die schöne Ortschaft verfügt über einen Kindergarten und eine Grundschule sowie eine Sportanlage die nur in wenigen Minuten zu Fuß erreichbar sind.
Bushaltestelle ca. 3 Gehminuten. Busse nach Bad Rappenau und Bad Wimpfen.
Die Zufahrt zur A6 ist einen Ort weiter entfernt und daher schnell erreicht.
Entfernungen:
- Bad Rappenau ca. 4 km
- Bad Wimpfen ca. 5 km
- Neckarsulm ca. 15 km
- Heilbronn ca. 19 km
Es liegt ein Energiebedarfsausweis vor.
Dieser ist gültig bis 25.7.2034.
Endenergiebedarf beträgt 144.20 kwh/(m²*a).
Das Baujahr des Objekts lt. Energieausweis ist 1924.
Die Energieeffizienzklasse ist E.
Energieausweis (Bedarfsausweis)
144,20 kWh / (m²*a) Endenergiebedarf
144,20 kWh / (m²*a) Endenergiebedarf
144,20 kWh / (m²*a) Endenergiebedarf
Weitere Informationen
| Befeuerung | Gas |
| Energieausweis gültig bis | 2034-07-25 |
| Energieausweis Jahrgang | ab dem 1.5.2014 |
| Energieausweis Werteklasse | E |
| Energieausweis Baujahr | 1924 |
| Energieausweis Gebäudeart | Wohngebäude |
| Heizung | Zentralheizung |
Ich bin damit einverstanden, dass mir Karten von Google angezeigt werden. Es gelten die Datenschutzbedingungen von Google (https://policies.google.com/privacy).
Ich bin einverstanden