Objektart
Adresse
Objektdaten
Informationen
Ausstattung
Details
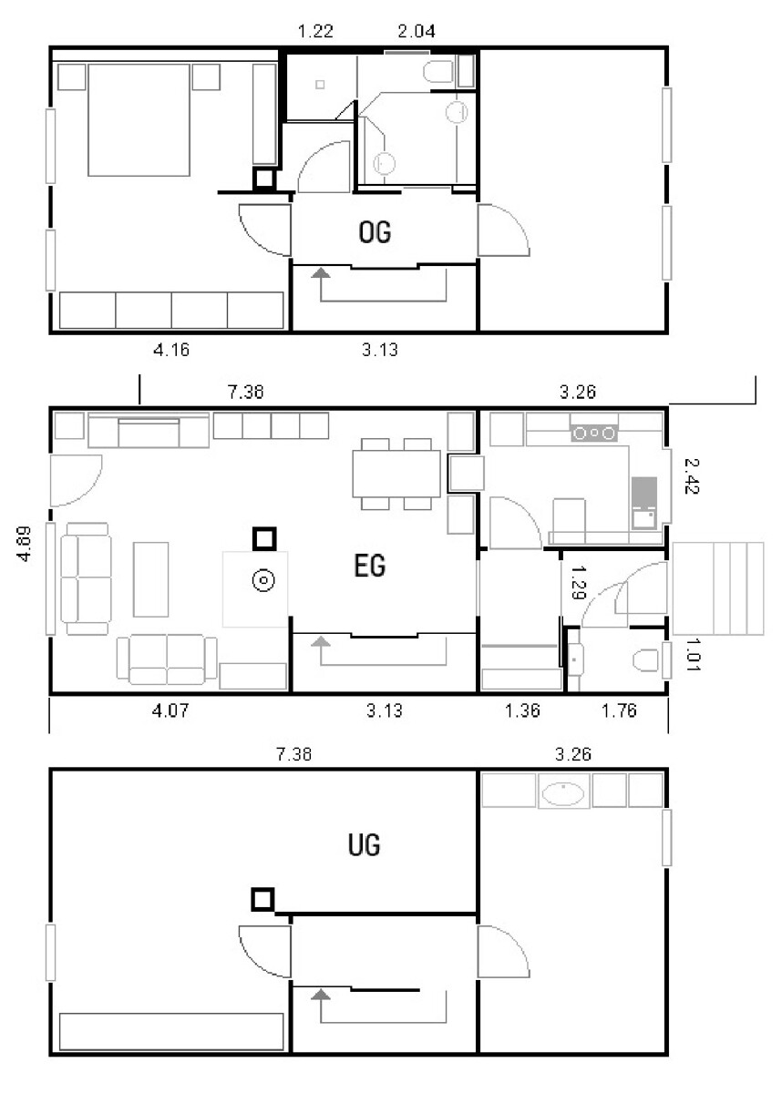
Zum Verkauf steht ein sehr gepflegtes Reihenmittelhaus in Heilbronn-Sontheim mit einer Wohnfläche von 96 m². Das Haus erstreckt sich über zwei Etagen mit Unterkellerung und bietet ein durchdachtes Raumkonzept.
Ein großzügig gestalteter Wohn- und Essbereich bildet das Herzstück der Immobilie. Die offene Raumstruktur schafft ein modernes, luftiges Ambiente und verbindet Wohnen, Essen und Genießen auf harmonische Weise.
Ein besonderes Highlight ist der stilvolle, drehbare Kaminofen, der sowohl vom Wohn- als auch vom Essbereich aus erlebbar ist. Er sorgt nicht nur für wohlige Wärme, sondern setzt zugleich einen eleganten, architektonischen Akzent und schafft eine behagliche Atmosphäre in beiden Bereichen. Die Küche ist mit einer modernen Einbauküche ausgestattet und ergänzt die praktische und komfortable Ausstattung der Immobilie. Zusätzlich verfügt die Immobilie über ein Gäste-WC. Die sonnige, überdachte Südterrasse bietet zusätzlichen Freiraum und lädt zu entspannten Stunden im Freien ein.
Im Obergeschoss befinden sich die Schlafräume sowie ein modern ausgestattetes Badezimmer mit großzügiger, bodengleicher Dusche. Eine Abstellkammer und ein Dachboden bietet zusätzlichen Stauraum.
Beheizt wird das Haus über eine effiziente Gasheizung.
Im Untergeschoss des Hauses befinden sich eine großzügige Waschküche und ein vielseitig nutzbarer Hobbyraum, die zusätzlichen Stauraum und zahlreiche Nutzungsmöglichkeiten bieten.
Das Haus wurde 1984 erbaut und befindet sich in einem sehr gepflegten Zustand.
Zum Haus gehört eine separate Einzelgarage mit Außenstellplatz.
Der Preis hierfür beläuft sich auf EUR 20.000.
Eine Übernahme der bestehenden Möblierung ist nach individueller Vereinbarung möglich.
Die Immobilie befindet sich im attraktiven Stadtteil 74081 Heilbronn-Sontheim-Ost einem der beliebtesten Wohnquartiere der Region.
Sontheim zeichnet sich durch eine ruhige, grüne Wohnatmosphäre aus und bietet damit ideale Voraussetzungen für ein harmonisches Familienleben. Der Stadtteil vereint die Nähe zur Innenstadt mit einer ausgeprägt ruhigen Wohnlage und einer guten Infrastruktur: Kindergärten, Grundschulen, weiterführende Schulen und die Fach Hochschule sind in wenigen Minuten erreichbar, was den Alltag mit Kindern besonders angenehm gestaltet.
Familien profitieren von einer Vielzahl an Spiel und Freizeitmöglichkeiten direkt vor der Haustür.
Nur wenige Gehminuten entfernt erstreckt sich der weitläufige Wertwiesenpark am Neckarufer - eine grüne Oase mit Spiel und Wasserspielplätzen, Minigolfanlage und großzügigen Wiesenflächen für gemeinsame Aktivitäten, Spaziergänge oder Picknicks mit Kindern. Weitere attraktive Erholungsflächen wie der Pfühlpark mit Abenteuerspielplatz und großen Liegewiesen laden zu aktiver Freizeitgestaltung und sportlichen Aktivitäten ein
Es liegt ein Energieverbrauchsausweis vor.
Dieser ist gültig bis 23.3.2036.
Endenergieverbrauch beträgt 46.20 kwh/(m²*a).
Das Baujahr des Objekts lt. Energieausweis ist 1985.
Die Energieeffizienzklasse ist A.
Besonderheiten:
- neues Küchenfenster
- Eingangsbereich vor dem Haus und der Garten wurden neu gestaltet
- Außenfassade neu gestrichen
- überall elektrische Rollläden
- Alle Fenster sowie die Terrassentüre haben ein Fliegengitter
- drehbarer Kaminofen im Wohn und Essbereich
- Tageslichtbad mit elektr. Fußbodenheizung und elektr. Dachfenster
- Einzelgarage mit einem elektrischen Tor
- Videoüberwachung
- elektr. Sonnenschutzmarkise
- Tür-Wechselsprechanlage
- DSL Anschluß
- Satelliten Anlage
- Glasfaser bis zum Grundstück
Energieausweis (Verbrauchsausweis)
46,20 kWh / (m²*a) Energieverbrauchskennwert
46,20 kWh / (m²*a) Energieverbrauchskennwert
46,20 kWh / (m²*a) Energieverbrauchskennwert
Weitere Informationen
| Befeuerung | Gas |
| Energieausweis gültig bis | 2036-03-23 |
| Energieausweis Jahrgang | ab dem 1.5.2014 |
| Energieausweis Werteklasse | A |
| Energieausweis Baujahr | 1985 |
| Energieausweis Gebäudeart | Wohngebäude |
| Heizung | Zentralheizung |
Ich bin damit einverstanden, dass mir Karten von Google angezeigt werden. Es gelten die Datenschutzbedingungen von Google (https://policies.google.com/privacy).
Ich bin einverstanden